Качели – это радость и удовольствие
Кто не любит кататься на качелях, они по нраву и детям, и взрослым. И те, и эти с превеликим удовольствием катаются на качелях, но дети в это привносят больше экстрима. Чем старше человек, тем больше хочется отдохнуть и расслабится в тени деревьев, при этом немного покачиваясь, да еще и с любимой книгой. Необязательно выбрасывать лишние деньги на конструкцию, очень легко сделать самому.
Основная работа качелей – приносить удовольствие и радость, но конструкция очень тяжелая и при поломке может подпортить здоровье окружающих.
Прежде чем приступить делать качели самостоятельно, надо тщательно обдумать и просчитать насколько они будут прочны и возможно ли избежать несчастных случаев.
Опоры качели должны быть прочными, не прогибаться, и не шататься.Скамейка обязана не представлять угрозу для травматизма, отличаться легкостью и полировкой. Для сидения или же опор с перекладиной выбирают различный тип древесины. Закрепить качели возможно цепями, канатами и тросами. При выборе материала главное определить запланированные нагрузки.
Размеры и «вместительность» качели продумывается перед ее изготовлением. Качели не надо делать слишком большими или маленькими. Самый оптимальный вариант до 2 м.
Где лучше расположить качели? Не надо размещать между грядками или на проходе.
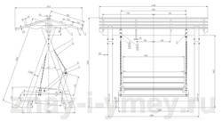
Сооружение конструкции.
Самое первое – это установка опоры. Лучше всего взять бруски в количестве 4 штук. Вкапывать в землю в виде буквы V, которая перевернута. Длиной скамейки определяется расстояние между опорами. Опоры вкапывают и раскрепляют гравием и камнями.
Перекладину необходимо устанавливать после установления опор. Она воспринимает больше нагрузки, а также это важная часть конструкции, поэтому должна быть прочной и качественной. Для материала отлично подойдет сосна. Брус должен быть гладким без веток и сучков, трещины исключены. Из бруса того же сечения болтами и уголками крепятся на перекладину две поперечины. Перфорированными накладками и винтами крепится перекладина, допускается крепление при помощи скоб. Затем изготавливается скамейка для качелей. Для нее понадобиться 2 бруска и 2 доски. Скамейку прикрепить к перекладине лучше цепями, цепь должна быть со звеньями до 2,5 см и толщиной проволоки до 3,5 см. Качели будут удобные, если скамейка держится на четырех цепях. Закрепить работу лучше покрытием конструкций разогретой олифой.






